يحتوي عنصر دليل الختم الهيدروليكي ، مثل منتجات الختم الهيدروليكية الأخرى ، على نماذج تقسيم فرعية محددة. حافظت Ruichen Seals دائمًا على تطوير المنتج ومراقبة الجودة. كل نموذج له خصائص تصميم وإنتاج مختلفة ، ولديه ظروف عمل وتطبيقات أكثر استهدافًا.
يحتوي حزام دليل polytetraethylene المقوى RC1081 على خصائص الحمل العالي ، والارتداء المنخفض ، والاحتكاك المنخفض ، ولا زحف بسبب إضافة مسحوق البرونز ومواد أخرى إلى مادة PTFE. حزام دليل الفينول RC1082 RC1082 له سعة حمولة شعاعية أعلى من حزام دليل PTFE بسبب استخدام المواد المقوى بالقطعة الفينولية. يتم توفير كلا الأحزمة التوجيهية في لفات ، والتي يمكن أن تقطعها المستخدمون لسهولة التثبيت وتجنب ملامسة المعادن على سطح الانزلاق.
حلقة الدعم هي مكون أساسي مهم للأسطوانة الهيدروليكية. من أجل التكيف مع تطوير الأختام ذات الحلقة المنزلق مجتمعة وهياكل تحمل ناعمة في العالم ، قامت شركتنا بنجاح بتطوير حلقات دعم الفينول المعززة على القماش (الأحزمة). لقد أظهرت سنوات من الاستخدام الفعلي أن هذا المنتج قد وصل أو تجاوز مستوى جودة المنتجات الأجنبية المماثلة وقد امتدح المستخدمون على نطاق واسع. يمكن استخدام جدول أداء حلقات الدعم (الأحزمة) التي تنتجها شركتنا كمرجع. يلعب مكبس ومكبس القضيب للأسطوانة الهيدروليكية المتبادلة دورًا في الدعم والتوجيه.
RCS حلقة دليل غير معدني لمكبس RCT RCT الدليل غير المعدني للمكبس
بالنسبة للمكبس أو قضيب المكبس الذي يعمل في الأسطوانة الهيدروليكية ، فإن حلقة التآكل لها تأثير توجيهي دقيق ويمكن أن تمتص القوى الشعاعية. في الوقت نفسه ، يمكن أن تمنع حلقة التآكل التلامس المعدني للأجزاء المنزلق في الأسطوانة الهيدروليكية. بالمقارنة مع حلقات ارتداء المعادن ، فإن حلقات التآكل غير المعدنية لها العديد من المزايا. من بينها ، تتوفر حلقات دليل الفينول و PTFE المقوى بالقطعة في أنواع القطع في الموقع وأنواع جاهزة للاستخدام.
1. مقاومة ارتداء جيدة
2. تجنب الاتصال المعدني
3. يمكن قمع الاهتزاز الميكانيكي
4. بسبب التأثير المتمركز لخاتم التآكل ، يُسمح بتصفيات شعاعية أكبر
5. أخدود بسيط وسهل التثبيت
تكلفة الصيانة المنخفضة بناءً على المزايا المذكورة أعلاه ، يتم استخدامها على نطاق واسع
دليل الأكمام
GFAI هو غلاف دليل لقضيب المكبس ، الذي يدعم ويوجه قضيب المكبس ويحتوي أيضًا على وظيفة مقاومة للغبار. دليل الأكمام GFI و GFA هي الأكمام دليل لقضيب المكبس ، الذي يدعم ويرشد قضيب المكبس.
يتكون حلقة دليل RCSF-1 من صفيحة فولاذية مثل القاعدة ، ومسحوق البرونز في الوسط ، ومزيج من polytetrafluoroethylene والألياف ملفوفة على السطح. الميزات: 1. مزيج PTFE والألياف هو 0.01-0.03 مم ، ويشكل فيلم نقل لحماية السطح المزدوج وله خصائص تشتيت ذاتي ؛ 2. طبقة مسحوق النحاس هي 0.2-0.3 مم ، مع قدرة جيدة على الحمل ومقاومة التآكل ، والتوصيل الحراري الجيد ؛ 3. الصلب منخفض الكربون ، مما يوفر قدرة جيدة على الحمل والتوصيل الحراري.
RCFB نوع الدليل البرونزي مصنوع من البرونز CUSN8 كمواد أساسية وهي جلبة اقتصادية ذات قدرة عالية الحمل ومقاومة جيدة. يتم تغطية سطح العمل لمنتج RCFB090 بثقوب زيت الماس العادية ، وسطح العمل لمنتج RCFB092 مغطى بثقوب زيت منتظمة ، والتي تلعب دور تخزين الزيت. من الأسهل تشكيل فيلم زيت في بداية الحركة ، مما يقلل من مقاومة الاحتكاك الأولية.
ميزات وتطبيقات المنتج:
مثال على الطلب:
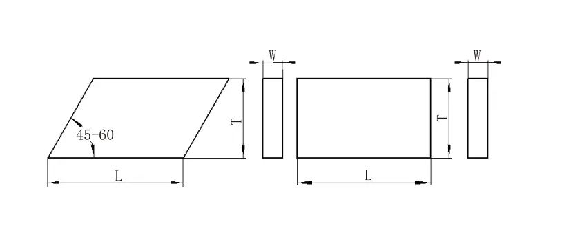
شريط دليل PTFE مثال على اطلب RC1081 - 9.7x2.5
شريط دليل القماش الفينوليين مثال على ذلك RC1082 - 9.7x2.5
حساب طول القطع
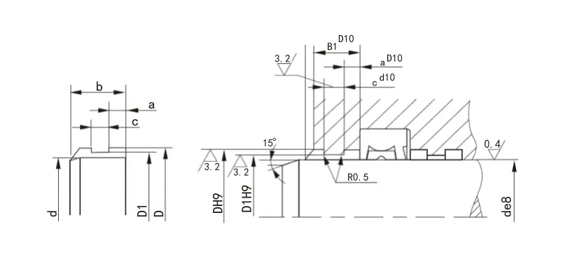
للعمود: L = 3.1 (D+W) للفتحة: L = 3.1 (D-W)
L --- طول الحلقة D --- قطر العمود D --- قطر ثقب W --- سمك الحلقة z --- خلوص قطع
دليل الأكمام gfai
1.
2. المادة: نايلون PA ، poMoxymethylene pom و polytetrafluoroethylene ptfe.
3. ظروف العمل: درجة حرارة العمل: -55 ~+225 درجة مئوية (يتم استخدام PTFE أعلى من 120 درجة).
4. معيار التصميم: عند التصميم والاختيار ، راجع سلسلة FAI لشركة الجوع.
5. طريقة العلامات والطلب: تم وضع علامة على الأكمام GFAI مع رقم الطلب ، مثال: GFAI-0600 PTFE
دليل الأكمام GFI
1. الأداء والاستخدام: دليل GFI هو غلاف دليل لقضيب المكبس ، الذي يدعم ويرشد قضيب المكبس.
2. المادة: نايلون PA ، poMoxymethylene pom و polytetrafluoroethylene ptfe.
3. ظروف العمل: درجة حرارة العمل: -55 ~+255 درجة مئوية (يتم استخدام PTFE أعلى من 120 درجة مئوية)
4. تصميم التصميم: عند التصميم والاختيار ، راجع سلسلة FI's Hunger.
5. طريقة وضع العلامات والطلب: تم وضع علامة على الأكمام GFI برقم الطلب ، مثال: GFI-0360 PA
دليل الأكمام GFA
1. الأداء والاستخدام: دليل GFA هو دليل دليل للمكبس ، والذي يدعم ويرشد المكبس.
2. المادة: نايلون PA ، poMoxymethylene pom و polytetrafluoroethylene ptfe.
3. ظروف العمل: درجة حرارة العمل: -55 ~+255 درجة مئوية (يتم استخدام PTFE أعلى من 120 درجة مئوية)
4. تصميم التصميم: عند التصميم والاختيار ، راجع سلسلة FA's Hunger.
5. طريقة وضع العلامات والطلب: تم وضع علامة على الأكمام GFA برقم الطلب ، مثال: GFA-0560 PA
6. الجهاز الهيكلي:
تحديد:
| نموذج | عرض الأخدود H+0.2 |
سماكة T-0.05 |
سمك ر T-0.05 |
سماكة T-0.05 |
سماكة T-0.05 |
سماكة T-0.05 |
| RC1081/1082-4.2 | 4.2 | 1 | 1.55 | 2 | 2.5 | - |
| RC1081/1082-5.6 | 5.6 | 1.55 | 2 | 2.5 | - | - |
| RC1081/1082-6.3 | 6.3 | 1.55 | 2 | 2.5 | - | - |
| RC1081/1082-8.1 | 8.1 | 1.55 | 2 | 2.5 | - | - |
| RC1081/1082-9.7 | 9.7 | 2 | 2.5 | 3 | 3.5 | 4 |
| RC1081/1082-12.7 | 12.7 | 2 | 2.5 | 3 | 3.5 | 4 |
| RC1081/1082-15 | 15 | 2 | 2.5 | 3 | 3.5 | 4 |
| RC1081/1082-20 | 20 | 2 | 2.5 | 3 | 3.5 | 4 |
| RC1081/1082-25 | 25 | 2 | 2.5 | 3 | 3.5 | 4 |
| RC1081/1082-30 | 30 | 2 | 2.5 | 3 | 3.5 | 4 |
| RC1081/1082-35 | 35 | 2 | 2.5 | 3 | 3.5 | 4 |
| ملاحظة: سلسلة Boldface شائعة الاستخدام. إذا لم يكن المنتج المطلوب في هذا الجدول ، فيرجى الاتصال بنا. | ||||||
حلقة دعم الفينول المقوى بالقطعة (حزام)
حلقات الدعم هي مكونات أساسية مهمة للأسطوانات الهيدروليكية. من أجل التكيف مع تطوير الأختام ذات الحلقة المنزلق مجتمعة وهياكل تحمل ناعمة في العالم ، قامت شركتنا بنجاح بتطوير حلقات دعم الفينول المعززة على القماش (الأحزمة). لقد أظهرت سنوات من الاستخدام الفعلي أن هذا المنتج قد وصل أو تجاوز مستوى جودة المنتجات الأجنبية المماثلة وقد امتدح المستخدمون على نطاق واسع. الجداول من 1 إلى 4 هي جداول أداء حلقات الدعم (الأحزمة) التي تنتجها شركتنا.
| مصدر العينة | دعم سمك الحلقة (مم) | قوة الضغط (MPA) | معدل تغيير وزن مقاومة الزيت الزيت الهيدروليكي (70 ± 2 ℃*24H) | قوة كسر (MPA) | التصاق الطبقة البينية (KN/M) |
| الموضة+شامبا | 2.48 | 338.9 | 2.83 | 35.6 | 1.2 |
| منتجاتنا | 2.48 | 425 | 0.90 | 37.0 | 2.9 |
| 2.48 (مع الجرافيت) | 390 | 0.63 | 36.4 | 2.08 |
| تنوع عينة | منتجاتنا | Orchot استطاع ① | Duratec900 ① | Turcite47 ② | MT64/5B | Nokwr (اليابانية) | تعديل بوم polyoxymethylene | القط (الولايات المتحدة) | |
| القيمة المقاسة | المؤشرات المطلوبة | ||||||||
| قوة الضغط (MPA) | ≥350 | ≥330 | ≥350 | ≥280 | ≥50 | ≥270 | ≥150 | ≥80 | ≥217 |
| تنوع عينة | منتجاتنا | Orchot استطاع ① | Duratec900 ① | Turcite47 ② | MT64/5B | Nokwr (اليابانية) | تعديل بوم polyoxymethylene | القط (الولايات المتحدة) | |
| القيمة المقاسة | المؤشرات المطلوبة | ||||||||
| قوة الضغط (MPA) | ≥350 | ≥330 | ≥350 | ≥280 | ≥50 | ≥270 | - | ≥80 | ≥217 |
| تحميل لكل وحدة ملامس طول ث (ن/مم) | ترحيل الاتصال Hertz (n/mm2) | معامل الاحتكاك | |||
| حالة الاحتكاك الجاف | حالة تزييت بالتنقيط النفط | ||||
| منتجاتنا | Orchot TLG | منتجاتنا | Orchot TLG | ||
| 5.9 | 22.0 | 0.054 | 0.066 | 0.057 | 0.079 |
| 29.0 | 48.7 | 0.052 | 0.067 | 0.056 | 0.081 |
| 44.4 | 60.3 | 0.045 | 0.071 | 0.055 | 0.088 |
| 59.8 | 69.8 | 0.021 | 0.073 | 0.053 | 0.087 |
| 75.2 | 78.3 | 0.020 | 0.075 | 0.052 | 0.085 |
| حزام PTFE مقاوم للارتداء (حلقة) | |
| مادة | PTFE+البرونز |
| إمداد | لفة (عادة حوالي 20 متر/لفة) أو مقطعة إلى الطول المطلوب |
| المزايا | 1. احتكاك منخفض ، لا زحف والعض. |
| 2. يمكن أن تعمل بشكل جيد دون تزييت كاف. | |
| 3. مقاومة لمجموعة متنوعة من الوسائط ، والاستقرار الكيميائي الممتاز ؛ | |
| 4. يمكن أن تستوعب الأشياء الصلبة المضمنة في الحلقة المقاومة للارتداء ، مما يقلل من الأشياء الصلبة التي تخدش الأسطوانة والأختام ، لذلك في حالات التحميل الثقيل ، تستخدم حلقات متعددة مقاومة للارتداء ؛ | |
| 5. كما أن لديها مقاومة جيدة للارتداء في حالات التحميل العالي السرعة والضوء ، لذلك فهي الحلقة الأكثر استخدامًا على نطاق واسع ؛ | |
| 6. لا توجد قيود على الحجم ، يمكن استخدامها في مواقف قطر كبيرة. | |
| درجة حرارة | -60 ~+200 ℃ |
| السرعة القصوى | 15m/s |
| أقصى قوة البثق | 15n/mm2 (20 درجة) |
| 7.5N/mm2(80°) | |
| 5N/mm2(120°) | |
حلقة دليل غير معدنية لقضيب مكبس RCS
حلقة دليل غير معدنية لمكبس RCT
بالنسبة للمكبس أو قضيب المكبس الذي يعمل في الأسطوانة الهيدروليكية ، فإن حلقة التآكل لها تأثير توجيهي دقيق ويمكن أن تمتص القوى الشعاعية. في الوقت نفسه ، يمكن أن تمنع حلقة التآكل التلامس المعدني للأجزاء المنزلق في الأسطوانة الهيدروليكية. بالمقارنة مع حلقات ارتداء المعادن ، فإن حلقات التآكل غير المعدنية لها العديد من المزايا. من بينها ، تتوفر حلقات دليل الفينول و PTFE المقوى بالقطعة في نوع القطع في الموقع ونوع جاهز للاستخدام.
1. مقاومة ارتداء جيدة
2. تجنب الاتصال المعدني إلى المعدن
3. يمكن قمع الاهتزاز الميكانيكي
4. بسبب التأثير المتمركز لخاتم التآكل ، يُسمح بإزالة شعاعية كبيرة
5. أخدود بسيط ، سهل التثبيت
6. تكلفة الصيانة المنخفضة بناءً على المزايا المذكورة أعلاه ، يتم استخدامها على نطاق واسع
مواد:
1. polytetrafluoroethylene ptfe3 (المواد العامة) ، PTFE4 (مناسبة لوسائل الإعلام منخفضة اللزوجة مثل الماء) ، PTFE1 (متطلبات الترحيات المنخفضة مثل الرئوي.
2. البوليوكسيمي ميثيلين بوم أو نايلون با ومواده المعدلة
3. راتنج الفورمالديهايد +
جدول المقارنة لقدرة الحمل للمواد المختلفة (مرجع)
| مواد | سعة التحميل بحد أقصى (N/MM2) |
| مسحوق النحاس مملوءة PTFE | 15 (20 درجة مئوية) ؛ 7.5 (80 درجة مئوية) ؛ 5 (120 درجة مئوية) |
| الفينول بقطعة قماش | 90 (60 درجة مئوية) ؛ 40 (80 درجة مئوية) |
| polyoxymethylene أو النايلون | 25 (60 درجة مئوية) ؛ 15 (80 درجة مئوية) |
| ممتلئ البولي أوكسي ميثيلين أو نايلون | 40 (60 درجة مئوية) ؛ 30 (80 درجة مئوية) |
| نعومة | RTMAX (ميكرون) | RA (ميكرون) |
| سطح الانزلاق | ≤2.5 | 0.05-0.3 |
| أخدود أسفل | ≤10 | ≤2 |
| الجانب الأخدود | ≤15 | ≤3 |
سلسلة مواصفات حلقة دليل قضيب المكبس
| قطر قضيب | القطر السفلي | عرض الأخدود | سماكة | فجوة |
|
قطر قضيب | القطر السفلي | عرض الأخدود | سماكة | فجوة |
| D F8/H9 | D H8 | L+0.2 | W | Z | D F8/H9 | D H8 | L+0.2 | W | Z | |
| 8-20 | D+3.1 | 2.5 | 1.55 | 1-2 | 200-999.9 | D+5 | 25 | 2.5 | 8-33 | |
| 10-50 | D+3.1 | 4 | 1.55 | 1-3 | 1000-4200 | D+5 | 25 | 2.5 | 33-134 | |
| 15-140 | D+5 | 5.6 | 2.5 | 2-5 | 280-999.9 | D+8 | 25 | 4 | 10-33 | |
| 20-220 | D+5 | 9.7 | 2.5 | 2-9 | 1000-2200 | D+8 | 25 | 4 | 33-70 | |
| 80-400 | D+5 | 15 | 2.5 | 4-15 |
|
|
|
|
|
| RCSF-1 دليل الدليل الذاتي المعلمات حلقة | |||||||
| حدود | RCSF-1 | RCSF-1D | RCSF-1B | RCSF-1S | |||
| البطانات الخالية من الرصاص | كم الهيدروليكي الخاص | قاعدة برونزية جلبة | كم مقاومة للتآكل الفولاذ المقاوم للصدأ | ||||
![]() |
![]() |
![]() |
![]() |
||||
| الحد الأقصى لضغط المحمل (ديناميكي) | 140n/mm² | 140n/mm² | 140n/mm² | 140n/mm² | |||
| الحد الأقصى لضغط المحمل (ثابت) | 250n/mm² | 250n/mm² | 250n/mm² | 250n/mm² | |||
| حركة التذبذب | 60n/mm² | 60n/mm² | 60n/mm² | 60n/mm² | |||
| أقصى سرعة انزلاق (تزييت الزيت) | <2m/s | <2m/s | <2m/s | <2m/s | |||
| الاحتكاك معامل μ | الاحتكاك الجاف | 0.04 ~ 0.2 | 0.04 ~ 0.18 | 0.03 ~ 0.18 | 0.04 ~ 0.2 | ||
| تزييت الزيت | 0.02 ~ 0.08 | 0.02 ~ 0.08 | 0.02 ~ 0.08 | 0.02 ~ 0.08 | |||
| أقصى قيمة الكهروضوئية (جافة) | 3.6n/mm².m/s | 3.8n/mm².m/s | 4.3n/mm².m/s | 3.6n/mm².m/s | |||
| أقصى قيمة الكهروضوئية (النفط) | 30n/mm².m/s | 30n/mm².m/s | 30n/mm².m/s | 30n/mm².m/s | |||
| درجة حرارة التشغيل | -195 ℃ ~+280 ℃ | -195 ℃ ~+280 ℃ | -195 ℃ ~+280 ℃ | -195 ℃ ~+280 ℃ | |||
| الموصلية الحرارية | 42W/M.K | 42W/M.K | 42W/M.K | 42W/M.K | |||
| معامل التوسع الخطي | 11*10-6/ك | 11*10-6/ك | 18*10-6/ك | 15*10-6/ك | |||
| RCFB نوع الدليل البرونزي جدول معلمة المعلمة | |||||||
| المعلمة | RCFB090 | RCFB092 | RCFB09G |
|
|||
![]() |
![]() |
![]() |
|
||||
| كثافة | 8.9g/cm³ | 8.9g/cm³ | 8.9g/cm³ |
|
|||
| قوة الضغط | 470n/mm² | 470n/mm² | 470n/mm² |
|
|||
| الموصلية الحرارية | 60W/M.K | 60W/M.K | 58W/M.K |
|
|||
| معامل التوسع الخطي | 18.5*10-6/ك | 18.5*10-6/ك | 18.5*10-6/ك |
|
|||
| صلابة | 90 ~ 120HB | 90 ~ 120HB | 90 ~ 120HB |
|
|||
| استطالة | 55 ٪ | 55 ٪ | 55 ٪ |
|
|||
| اسم المواد | Cusn8p | Cusn8p | Cusn8p |
|
|||
| مواد اختيارية أخرى | Cusn6.5p | Cusn6.5p | Cusn6.5p |
|
|||



























عنوان
رقم 1 طريق رويتشن، مجمع دونغليوتينغ الصناعي، منطقة تشنغيانغ، مدينة تشينغداو، مقاطعة شاندونغ، الصين
هاتف
بريد إلكتروني